Previously Approved ADUs
ADU A1
Beautiful 1,100 SF ADU with 3 bedrooms and 2 bathrooms, featuring an open-ceiling concept in the great room and kitchen. Click the contact button to inquire about this previously approved ADU or to request modifications.






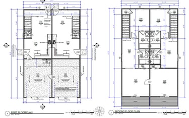
ADU B2
Attractive two-story 1,200 SF ADU with 2 bedrooms and 2 bathrooms, a car garage, and attached guest quarters featuring a well-appointed kitchen. Click the contact button to inquire about this previously approved ADU or to request modifications.






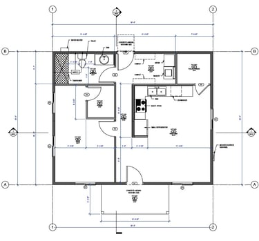
ADU C3
Beautiful 600 SF ADU featuring a functional and well-balanced layout with 1 bedroom and 1 bathroom. This thoughtfully designed unit offers an open-concept living area that seamlessly connects the kitchen, dining, and great room, creating a spacious and inviting environment ideal for modern living. The kitchen includes ample cabinetry, a full appliance layout, and direct access to the adjacent laundry area for convenience.
Click the contact button to inquire about this previously approved ADU or to request modifications tailored to your project needs.






ADU D4
Beautiful 1,200 SF Spanish-style ADU featuring a thoughtfully designed layout with 3 bedrooms and 2 bathrooms. This residence showcases classic architectural elements, including multiple gable rooflines, stucco exterior finishes, and a warm, inviting aesthetic that reflects timeless Spanish design. The interior offers a spacious open-concept great room with vaulted ceilings, seamlessly connecting the living, dining, and kitchen areas.
Click the contact button to inquire about this previously approved ADU or to request modifications tailored to your project needs.




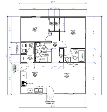
ADU E5
Charming 750 SF ADU featuring 2 bedrooms and 2 bathrooms with a highly efficient and functional layout. This design offers an open-concept kitchen and great room with vaulted ceilings, creating a bright and spacious living area. The unit includes a dedicated laundry space, well-sized bedrooms with closets, and two full bathrooms for added convenience. Finished with a clean stucco exterior and a simple gable roof design, this ADU provides a practical and attractive solution for comfortable living.
Click the contact button to inquire about this previously approved ADU or to request modifications.






